Nhà Phố Sen Vàng Town Bình Chánh

Sen Vàng Town là khu nhà phố thương mại tọa lạc ngay mặt tiền đường Quách Điêu do Sen Vàng Holdings làm đơn vị phát triển dự án. Khu phố thương mại Sen Vàng Town Quách Điêu được xây dựng trên khu đất có diện tích gần 5.000 m² với 37 căn nhà phố có sổ đỏ cho từng nền với thời gian sở hữu lâu dài.

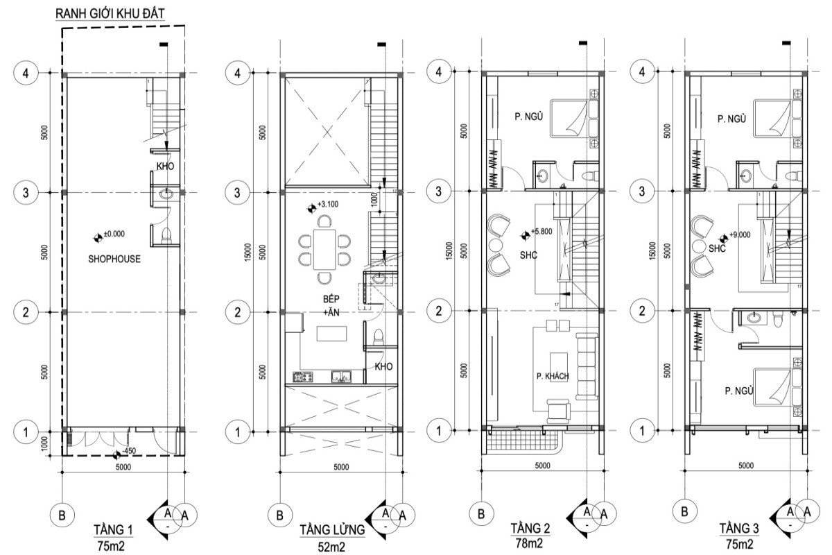
Nhà phố Sen Vàng Town có thiết kế 1 trệt, 1 lửng, 2 lầu, 1 áp mái với mặt ngoài được hoàn thiện đồng bộ, bên trong giao thô và có làm sẵn cầu thang.

Sen Vàng Town Quách Điêu là khu dân cư biệt lập – khép kín, được thiết kế, xây dựng cơ sở hạ tầng hoàn chỉnh. Với hệ thống điện được âm hóa hoàn toàn, hệ thống đường nội bộ tráng nhựa 8m, vỉa hè mỗi bên 1 m có lát gạch hoặc đá.

Tổng Quan

TỔNG QUAN NHÀ PHỐ SEN VÀNG TOWN BÌNH CHÁNH

Tên dự án: SEN VÀNG TOWN
Vị trí: Mặt tiền đường Quách Điêu, thị xã Vĩnh Lộc A, Bình Chánh, TPHCM  
Chủ đầu tư: Sen Vàng Holdings
Đơn vị xây dựng: Công ty cổ phần đầu tư xây dựng VITECCONS
Đơn vị giám sat: SAMOOCM
Tư vấn thiết kế: Point Architecture
Quy mô dự án: Diện tích toàn khu: 4495m². 37căn nhà phố thương mại.

Diện tích đất: 90 – 126m² (ngang 5m). Diện tích xây dựng: 275 – 400m²

Quy cách thiết kế: Nhà phố xây sẵn với kết cấu 1 trệt, 1 lửng, 2 – 3 lầu, 1 áp mái.
Bàn giao: Hoàn thiện mặt ngoài theo thiết kế, thô bên trong. Có cầu thang 
Ngân hàng: Vietcombank
Giá bán dự kiến: 7,6 – 8,2 Tỷ
Pháp lý: Sổ đất riêng và GPXD riêng từng căn. Sở hữu lâu dài.

(Xem thêm: Pháp lý Sen Vàng Town)

Vị Trí

VỊ TRÍ ĐẮC ĐỊA SEN VÀNG TOWN 

Dự án Sen Vàng Town tọa lạc ngay mặt tiền đường Quách Điêu thuộc xã Vĩnh Lộc A, huyện Bình Chánh. Khu phố thương mại Sen Vàng nằm đối diện Cửa Hàng Điện Máy Xanh, gần chợ Nữ Dân Công, cách giao lộ Vĩnh Lộc – Nguyễn Thị Tú chỉ hơn 1 km. Đây là vị trí tiếp giáp với địa bàn Vĩnh Lộc B, nơi rất thuận tiện để di chuyển về quận Tân Phú qua tuyến đường Nguyễn Thị Tú.

Đường Quách Điêu là tuyến đường có khu dân cư sầm uất, kinh doanh phát triển, đường có lộ giới 40m, có 2 đầu thông đi ra đường Thới Hòa và đường Nguyễn Văn Sáng. Khu phố thương mại Sen Vàng chỉ cách đường Thới Hòa 50 m, thuận tiện kết nối với với Khu Công nghiệp Vĩnh Lộc với với quy mô hơn 203 ha.

Tiện Ích

HỆ TIỆN ÍCH SEN VÀNG TOWN ĐA DẠNG VÀ PHONG PHÚ

A – NGOẠI KHU:

Sen Vàng Town được bao bọc bởi các dịch vụ tiện ích ngoại khu thiết yếu, quan trọng như:

 – Trường Mầm non Việt Mỹ, trường Tiểu học Vĩnh Lộc A, trường THCS Đồng Đen,

 – Chợ Vĩnh Lộc A, chợ liên ấp, cửa hàng tiện ích Bách Hóa Xanh,

 – Phòng khám đa khoa…

 

B – NỘI KHU:

Nội khu nhà phố Sen Vàng dành gần 300m2 để bố trí công viên cây xanh, khu thể dục thể thao ngoài trời và sân chơi trẻ em thoáng mát.

Sau khi hình thành và đi vào sử dụng, tất cả các dịch vụ thiết yếu và cao cấp đều được bố trí trong dự án như dịch vụ ăn uống, mua sắm, làm đẹp, thư giãn trang trí nội thất, tài chính … phục vụ nhu cầu của cư dân sinh sống trong dự án và khu vực lân cận.

Mặt Bằng

MẶT BẰNG SEN VÀNG TOWN QUÁCH ĐIÊU

Khu nhà phố Sen Vàng Town xây dựng với quy mô 4.495m², dự án do chủ đầu tư Senvang Holdings phát triển theo mô hình phố thương mại thuần túy. 

Khu thương mại đường Quách Điêu có 37 căn nhà phố Sen Vàng Town với quy chuẩn xây dựng đồng nhất là 1 trệt, 1 lửng, 2 lầu và 1 áp mái khi bàn giao cho khách hàng sẽ hoàn thiện mặt ngoài, bên trong giao thô có cầu thang.

Các căn nhà phố thương mại liền kề có diện tích từ 84,79 m² đến 126,61 m². Nhà phố Sen Vàng Town này đều hướng về trục phố thương mại có lộ giới 8m. Ngoại trừ một số căn góc ngay mặt tiền đường Quách Điêu, các căn còn lại đều có chiều rộng 5m và chiều ngang tối thiểu là 16m.

Thiết Kế

THIẾT KẾ NHÀ PHỐ THUƠNG MẠI SEN VÀNG TOWN

Khu nhà phố Sen Vàng Town Bình Chánh được thiết kế theo phong cách hiện đại với với mục tiêu hướng đến đối tượng khách là những thương nhân thành đạt. Ngoài nhu cầu để ở, họ có thể dành để cho thuê mặt mặt bằng kinh doanh, buôn bán.

Do đó, thiết kế của Sen Vàng Town có những nét đặc trưng như mặt ngoài được thiết kế và xây dựng đồng bộ có sử dụng khung kính cùng với các đường đường line tinh tế, kết kết hợp với với khung sắt mỹ thuật. Thiết kế này giúp mở rộng tầm nhìn tạo sự nổi bật cho dãy nhà đồng thời cũng tạo điểm nhấn “Phố thương mại” trong lòng khu dân dân cư.

Các ngôi nhà phố Sen Vàng đã được thiết kế cẩn thận để cung cấp một bố cục thiết thực và đa chức năng. Điều này bao gồm một hiên rộng có thể đậu xe hơi một cách thoải mái, một tiền sảnh rõ ràng và một khái niệm mở giữa phòng khách và khu vực ăn uống để mang lại cảm giác rộng rãi & thoáng mát.

Ngoài ra, mỗi căn nhà còn có một sân thượng rộng rãi cho cả gia đình cùng nhau tham gia các hoạt động ngoài trời, hoặc thậm chí một không gian riêng rất “chill” để tận hưởng cuộc sống.

Phương Thức Thanh Toán

PHƯƠNG THỨC THANH TOÁN NHÀ PHỐ SEN VÀNG TOWN

Phương thức thanh toán nhà phố Sen Vàng Town Bình Chánh được Chủ đầu tư Sen Vàng Holding hỗ trợ quý khách hàng nhiều hình thức thanh toán linh hoạt và nhận nhà khi chỉ thanh toán 15% đến 50%. Nếu quý khách hàng thanh toán nhanh có thể hưởng mức chiếc khấu ưu đãi khi đăng ký mua sớm.

ĐỢT THỜI GIAN THANH TOÁN TỶ LỆ THANH TOÁN
1 Ký hợp đồng cọc – Nhận bàn giao nhà để hoàn thiện nội thất 15%
2 01 tháng sau đợt 01 15%
3 02 tháng sau đợt 01 – Đưa vào sử dụng 20%
4 03 tháng sau đợt 01 5%
5 04 tháng sau đợt 01 5%
6 05 tháng sau đợt 01 5%
7 06 tháng sau đợt 01 5%
8 07 tháng sau đợt 01 5%
9 08 tháng sau đợt 01 5%
10 09 tháng sau đợt 01 5%
11 10 tháng sau đợt 01 – Ký hợp đồng chuyển nhượng công chứng 10%
12 11 tháng sau đợt 01 – Nhận sổ hồng 5%

***  Chính sách ngày mở bán:

► Nhà phố thương mại: Tặng 10 chỉ vàng SJC + Gói tiệc tân gia trị giá  50.000.000 đồng.

► Nhà phố Quách Điêu: Tặng 20 chỉ vàng SJC + Gói tiệc tân gia trị giá  100.000.000 đồng.

Chính sách hỗ trợ vay từ ngân hàng VietcomBank

♦ Thời gian cho vay lên đến 30 năm

♦ Không phải trả nợ gốc 24 tháng

♦ Lãi suất ưu đãi 5%/năm, cố định trong 2 năm đầu

♦ Tặng 18 Triệu đồng (trừ trực tiếp vào khoản vay)

Để lại bình luận

Đã thêm vào giỏ hàng

Scroll
Messenger Messenger
Google Map Google Map
Zalo Zalo
Gọi ngay Gọi ngay